$1,350,000
2,066
SQ FT
$653
SQ/FT
4943 Rice DR
@ Rice Way - Seven Trees, San Jose
- 4 Bed
- 2.5 (2/1) Bath
- 2 Park
- 2,066 sqft
- San Jose
-
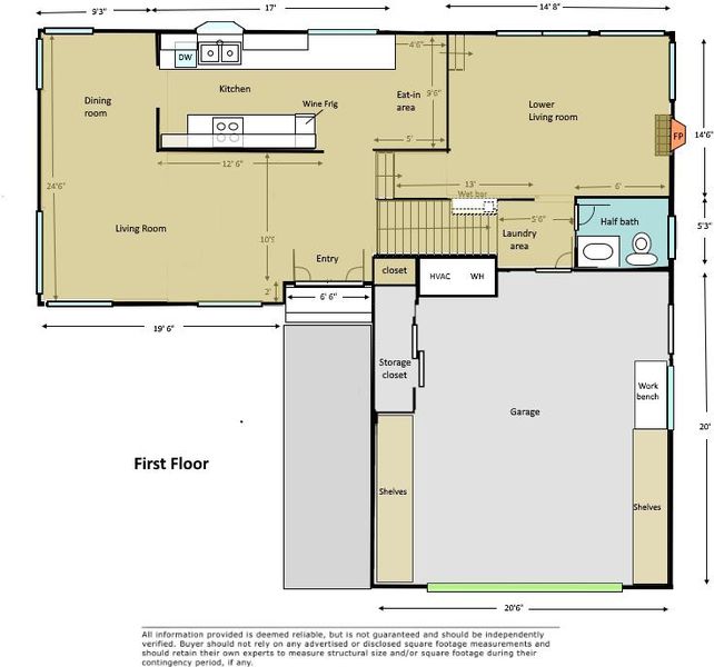
Home appraised for $1.45M in Nov. 2025. Instant equity at this price for a 4 bed, 2.5 bath home in the Edenvale area of San Jose. The spacious living room features soaring vaulted ceilings, rich cherry hardwood floors, and abundant natural light. A formal dining area flows into the updated kitchen with quartz countertops, stainless steel appliances, wine frig and ample cabinet space. Just off the kitchen, the step-down living room includes a stylish wet bar with lighted shelves and a gas fireplace. Upstairs are three comfortable bedrooms plus a enormous primary suite with high vaulted ceilings, dual vanity, new sinks and fixtures, a jetted tub, and a built-in makeup area. Recent upgrades include fresh interior and exterior paint, a newer A/C unit, and a central heating system (2025), new carpet, LVF in all bathrooms, and the removal of popcorn ceilings. The home is energy-efficient with 38 owned solar panels, dual-pane windows. Step outside to a backyard designed for entertaining with a sparkling in-ground pool, a spacious gazebo ideal for games and fun with friends. A separate shaded pergola for poolside lounging. There's space for your BBQ and a fenced dog run. Located near shopping, restaurants, and Edenvale Garden Park-with easy access to Hwy 101.
- Current Status
- Pending
- Sold Price
- Original Price
- $1,399,000
- List Price
- $1,350,000
- On Market Date
- Jan 17, 2026
- Contract Date
- Feb 25, 2026
- Close Date
- Mar 18, 2026
- Property Type
- Detached
- D/N/S
- Seven Trees
- Zip Code
- 95111
- MLS ID
- 41121244
- APN
- 68452010
- Year Built
- 1976
- Stories in Building
- 2
- Possession
- Close Of Escrow
- COE
- Mar 18, 2026
- Data Source
- MAXEBRDI
- Origin MLS System
- Bridge AOR
Davis (Caroline) Intermediate School
Public 7-8 Middle
Students: 596 Distance: 0.4mi
The Academy
Public 5-8 Opportunity Community
Students: 6 Distance: 0.4mi
Hayes Elementary School
Public K-6 Elementary
Students: 592 Distance: 0.5mi
Valley Christian High School
Private 9-12 Religious, Coed
Students: 1625 Distance: 0.7mi
Valley Christian Junior High School
Private 6-8 Religious, Nonprofit
Students: 710 Distance: 0.7mi
Stipe (Samuel) Elementary School
Public K-6 Elementary
Students: 423 Distance: 0.8mi
- Bed
- 4
- Bath
- 2.5 (2/1)
- Parking
- 2
- Attached, Int Access From Garage, Garage Faces Front, Garage Door Opener
- SQ FT
- 2,066
- SQ FT Source
- Public Records
- Lot SQ FT
- 6,100.0
- Lot Acres
- 0.14 Acres
- Pool Info
- In Ground, Outdoor Pool
- Kitchen
- Dishwasher, Electric Range, Microwave, Gas Water Heater, 220 Volt Outlet, Breakfast Nook, Stone Counters, Eat-in Kitchen, Electric Range/Cooktop, Disposal, Updated Kitchen, Other
- Cooling
- Ceiling Fan(s), Central Air
- Disclosures
- Nat Hazard Disclosure, Disclosure Package Avail
- Entry Level
- Exterior Details
- Back Yard, Dog Run, Front Yard, Low Maintenance, Yard Space
- Flooring
- Laminate, Tile, Vinyl, Carpet, Wood
- Foundation
- Fire Place
- Family Room, Insert, Gas
- Heating
- Forced Air, Fireplace Insert
- Laundry
- Hookups Only
- Main Level
- 0.5 Bath, Laundry Facility, Main Entry
- Possession
- Close Of Escrow
- Architectural Style
- Contemporary
- Non-Master Bathroom Includes
- Shower Over Tub, Double Vanity
- Construction Status
- Existing
- Additional Miscellaneous Features
- Back Yard, Dog Run, Front Yard, Low Maintenance, Yard Space
- Location
- Level, Back Yard, Front Yard, Landscaped
- Roof
- Shingle
- Water and Sewer
- Public
- Fee
- Unavailable
MLS and other Information regarding properties for sale as shown in Theo have been obtained from various sources such as sellers, public records, agents and other third parties. This information may relate to the condition of the property, permitted or unpermitted uses, zoning, square footage, lot size/acreage or other matters affecting value or desirability. Unless otherwise indicated in writing, neither brokers, agents nor Theo have verified, or will verify, such information. If any such information is important to buyer in determining whether to buy, the price to pay or intended use of the property, buyer is urged to conduct their own investigation with qualified professionals, satisfy themselves with respect to that information, and to rely solely on the results of that investigation.
School data provided by GreatSchools. School service boundaries are intended to be used as reference only. To verify enrollment eligibility for a property, contact the school directly.

